Information
  • Referenz: 570
  • Preis: 475.000€
  • Bebaute Fläche: 130 m2
  • Grundstück: 16000 m2
  • Stadt: Felanitx
  • Immobilientyp: Ländlichles Land
  • Schlafzimmer: 3
  • Emissionen: Ausstehend
  • Badezimmer: 2
  • Energieverbrauch: Ausstehend
Beschreibung

Nur wenige Gehminuten vom Ort Felanitx entfernt steht dieses sonnige, 16.000 m² große Landgrundstück zum Verkauf, das vollständig von mallorquinischen Steinmauern umgeben ist.

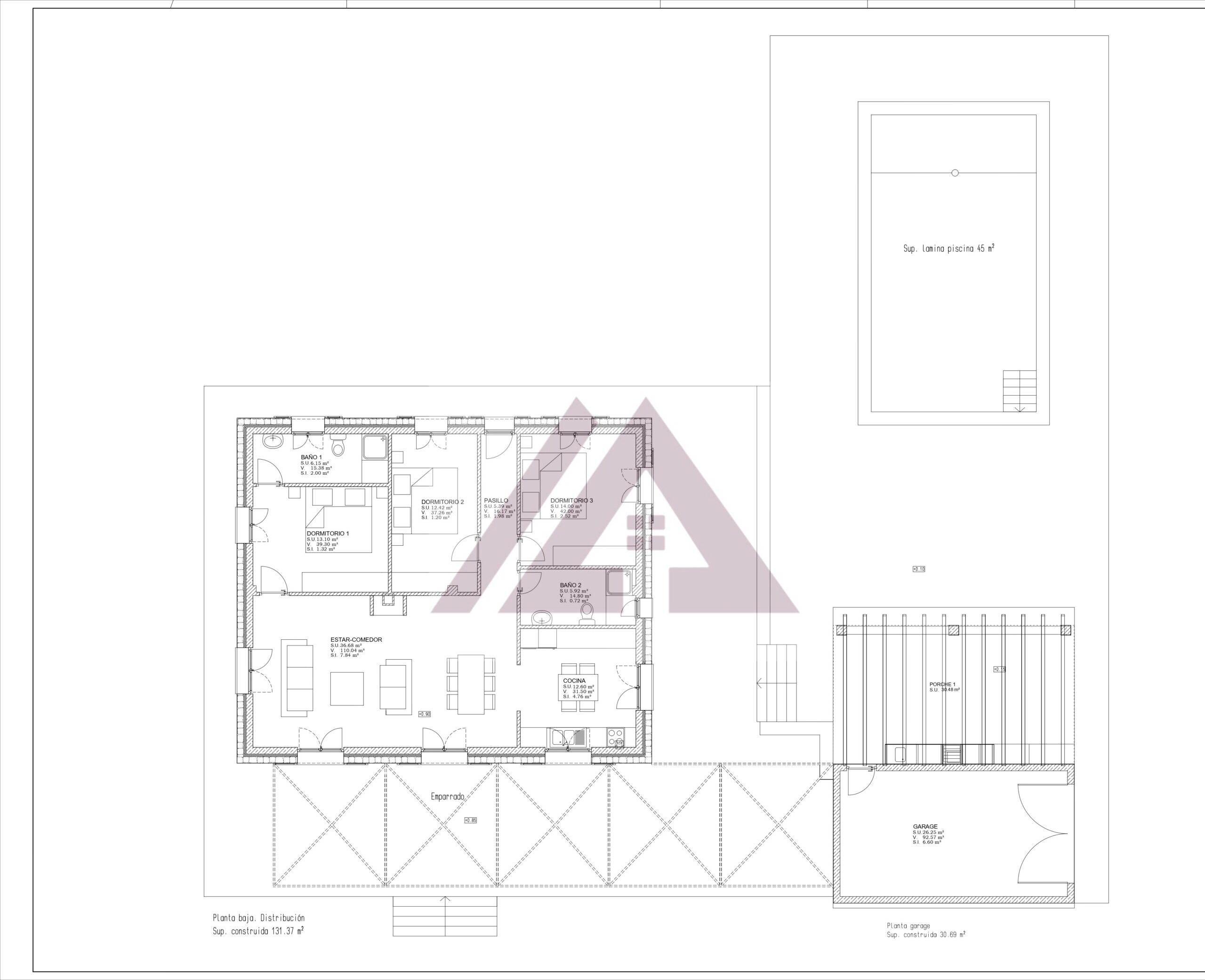
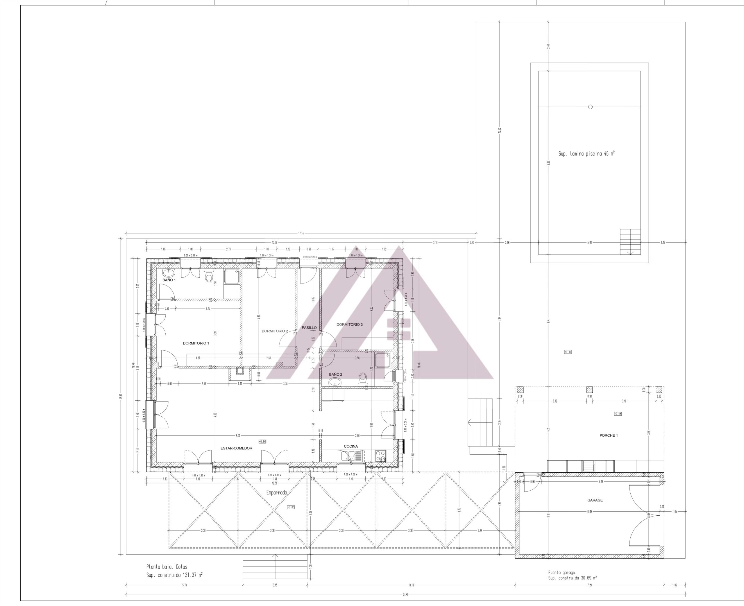
Auf dem Grundstück wurde bereits mit dem Bau eines einstöckigen Hauses mit einer Fläche von ca.

130 m² begonnen, das über einen 45 m² großen Pool sowie einen Abstellraum und eine 30 m² große Tiefgarage verfügt.

Der Innenbereich des Erdgeschosses gliedert sich in drei Doppelzimmer und zwei Badezimmer sowie ein Wohn-Esszimmer und eine Küche von ca.

50 m².

Die Baugenehmigung ist weiterhin gültig, sodass nur noch die grundlegenden Arbeiten abgeschlossen werden müssten, um die Bauabnahme zu erhalten.

Es verfügt über einen eigenen, legalen Brunnen; die Stromversorgung müsste über eine Photovoltaikanlage erfolgen.

Dies ist eine Gelegenheit, in kurzer Zeit ein neues, mit den besten Materialien erbautes Haus in einer sehr begehrten Gegend zu erwerben.

Ein Kostenvoranschlag für die Bauarbeiten liegt vor.

Der angegebene Preis enthält keine ITP-Steuer (8–13 % bei Gebrauchtimmobilien bzw.

10 % MwSt.

bei Neubauten), Notarkosten, Grundbuchgebühren, Verwaltungsgebühren und AJD-Steuer (1,2–1,5 % bei Neubauten).

Merkmale
  • Wasser
  • Garage
  • Garten
  • Privatpool
  • Typ nicht verfügbar(sótano)
  • Umgezäunt
  • Klare Ansichten